Motory s horizontální klikovou hřídelí
Motor
13 945,36 Kč / ks
11 525,09 Kč bez DPH
Skladem na e-shopu
Výrobce:
Loncin

Kód:
62881
Máte dotaz k produktu?
Napište nám, brzy se ozveme
- Série/model G390FD
- Typ motoru OHV, 1-válec 4-Takt
- Zdvih (cm?) 389
- Vrtání x zdvih (mm) 88 x 64
- Počet otáček (ot/min) 3600
- Jmenovitý výkon (PS/KW) 11,2 / 8,2
- Čistý točivý moment max. (Nm / ot/min) 25,1 / 2500
- Volnoběžné otáčky (ot/min.) 1850 ± 150
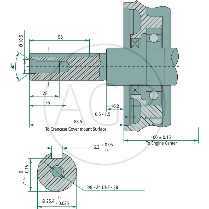
- Typ klikové hřídele válcovitý, horizontální
- Kliková hřídel-? (mm) 25,4
- Délka klikové hřídele (mm) 88,5
- Komprese 8,1 : 1
- Zapalování elektronické zapalování
- Startér revizní a e-startér
- Mazací systém Mazání
- Kapacita oleje motoru (l) 1,1
- Objem nádrže (l) 6,5
- Hmotnost (prázdné) (kg) 34
- Rozměry (mm) 405 x 450 x 443








